Bright and spacious 2-bed & 1.5 bath townhouse in Creekside Village has been thoughtfully updated with modern, functional finishes & new flooring throughout. Downstairs features a 2-car garage with a new door—as well as a welcoming entryway with in-floor heating. Upstairs, the main living area offers an open, airy layout with large windows and a private deck that overlooks a serene forested backdrop. Stone countertops, SS appliances, and sleek, timeless cabinetry in the kitchen. On the top floor, you’ll find two comfortable bedrooms and a beautifully renovated main bathroom, complete with custom tile work and a double vanity. Additional upgrades include new plumbing (2010), updated heat registers, recessed lighting, fresh paint throughout, and modernized outlets and switches.
Address
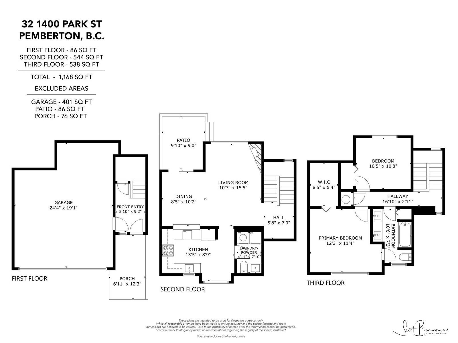
32 - 1400 Park Street
List Price
$849,000
Property Type
Residential
Type of Dwelling
Townhouse
Style of Home
3 Storey
Structure Type
Residential Attached
Transaction Type
Sale
Area
Pemberton
Bedrooms
2
Bathrooms
2
Half Bathrooms
1
Floor Area
1,168 Sq. Ft.
Main Floor Area
544
Lot Features
Central Location, Near Golf Course, Recreation Nearby, Ski Hill Nearby
Total Building Area
1168
Year Built
1996
Maint. Fee
$359.00
MLS® Number
R3043862
Listing Brokerage
Angell Hasman & Associates Realty Ltd.
Basement Area
None
Postal Code
V0N 2L1
Zoning
R1
Ownership
Freehold Strata
Parking
Garage Double, Guest, Front Access, Aggregate
Parking Places (Total)
4
Tax Amount
$4,356.74
Tax Year
2025
Pets
Cats OK, Dogs OK, Yes
Site Influences
Central Location, Near Golf Course, Recreation Nearby, Shopping Nearby, Ski Hill Nearby, Tennis Court(s)
Community Features
Shopping Nearby
Exterior Features
Tennis Court(s)
Appliances
Washer/Dryer, Dishwasher, Refrigerator, Stove, Microwave
Association
Yes
Board Or Association
Greater Vancouver
Association Amenities
Trash, Maintenance Grounds, Management, Snow Removal
Heating
Yes
Heat Type
Electric, Radiant, Wood
Fireplace
Yes
Fireplace Features
Free Standing, Wood Burning
Number of Fireplaces
1
Garage
Yes
Garage Spaces
2
Laundry Features
In Unit
Levels
Three Or More
Number Of Floors In Property
3
Number Of Floors In Building
3
Subdivision Name
Creekside Village
Login To View 67 Additional Details On 32 - 1400 Park Street
Get instant access to more information (such as room sizes) with a free account.
Already have an account? Login
